正聚实景 | 低调内敛 展现品质生活

发表时间:2022-09-26 10:12
图片

现在的人在快生活节奏中越来越追求简单大气装修风格品质生活了,而我们想要将房子装修的既简单又大气的话,一般采用现代简约简单很自由的搭配,整体居室色调简单的风格,今天小聚就为大家带来了一套现代简约的装修实景



图片


图片

图片

原始结构图


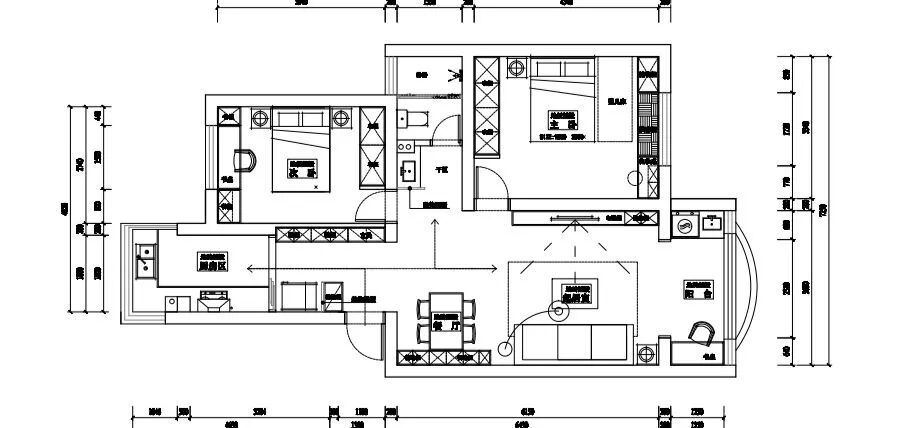
图片平面布置图


设计公司 | Design Company:正聚装饰

设计主创 | Design   Director:赵文贞

项目地址 | Project   Address :建设公寓

项目面积|Project Area:86㎡



图片


玄关

图片

入门处的玄关也做了一个储物柜的设计,内嵌的设计让物品的放置更加便携,内部也放置了一幅画,让整体更加的丰满,却不会有一种喧宾夺主的感觉,反而是一种点缀,让整体看起来更加具有空间感




图片


客厅

图片
图片
图片
图片
图片

简单内敛的配色让房间瞬间就立体了起来,咖色的沙发和背景墙搭配的恰到好处,背景墙的装饰也是具有设计感,不再是普通大众化的装修,而是具有自己独立审美的一种设计,完全符合自己的生活所需,感受生活的慵懒


灰色的瓷砖上还有淡淡的纹路,让整个房间都细致了起来,富有一种质感



图片


餐厅

图片
图片
图片
图片

餐厅的搭配设计也是和整个房间的色调和风格保持了一致,既没有调色的使用,也没有用大幅的手笔进行对餐厅的设计,而是在餐桌的周围制作了橱柜,既增加了储物的空间同时也方便了在用餐的时候可以将需要使用的物品放置在随手可以拿到的地方


在一种放松和愉快的氛围下一家人分享着今天自己发生的有趣的事情



图片


厨房

图片

厨房的设计则是最普遍的一种设计,充分的利用好空间,让每一个地方都做到有用处



图片


卫生间

图片
图片
图片

卫生间的设计让洗手池和里面的使用进行了一个区分,将在外面的洗手池外围设计了一个格挡把卫生间的区域进行了一个划分,使空间更加的规整,显得更加的整齐


内部的使用进行了一个干湿分离的设计,让卫生打扫更加的方便便携



图片


儿童房

图片
图片
图片
图片

儿童房的设计也是使用了整体的设计方案,进行了一个简单大方的一个设计理念,靠窗做了一个小小的书桌,让小朋友平常可以写作业的地方,墙上的卡通绘画表达了他们对孩子的爱


又做了一个大大的衣柜可以让小朋友的衣服都可以装下,也可以把自己的玩具收纳进去



图片


卧室

图片
图片
图片
图片

主卧的房间更大一些,也增加了更多的储物空间,可以收纳更多物品,同样设计了一个桌子在卧室里面,既可以当做办公区域进行使用,也可以给女业主当做化妆的桌子进行使用


卧室的整体的设计也是低调而内敛,色彩的搭配让人在这个氛围当中更加放松舒适



图片


图片


图片


如果还有什么其他装修方面的问题

可以在评论区留言,或者私信小编哦~

【正大光明   聚贤天下】

正聚装饰

Add/虹口店:虹口区花园路128号运动loft五街区A座2楼

Tel/电话:400-816-2909

Add/普陀店:怒江北路598号B座20楼(红星世贸大厦)

Tel/电话:400-900-6705

Add/南通店:南通市崇川区五洲国际C座创意港10楼

Tel/电话:400-017-0910

关注我~了解更多装修咨询 预约免费量房!



分享到:
ZhengJu Decoration
上海市虹口店:虹口区花园路128号运动loft五街区A座2楼
电话:400-816-2909
上海市普陀店:怒江北路598号B座20楼(红星世贸大厦)
电话:400-900-6705
南通市崇川店:南通市崇川区中新二路8号得利产业园2幢
电话:400-017-0910