正聚实景 | 112㎡简约轻奢,质感生活

发表时间:2022-09-26 10:10
图片

沉淀下来的色调也是沉淀下来的生活,简约中性的配色更加富有质感


都说留白是高级的审美,看似随意的布置其实都是精心的设计,不多不少一切都刚刚好



图片


图片
图片

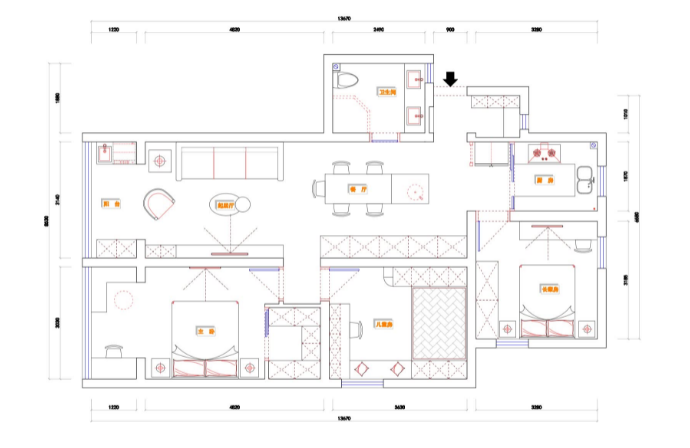
原始户型图

图片

平面布置图




设计公司 | Design Company:正聚装饰

设计主创 | Design   Director:徐炼华

项目地址 | Project   Address :天极盛宅

项目面积 | Project   Area :112㎡




玄关

图片
图片

入门的玄关处精心设计了一个全身镜,每次出门的时候也可以及时整理的自己妆容与服饰,同时增加了玄关处入门的空间感,在视觉上让空间更加有立体感


镜子做了一个内嵌的设计,空余的部分也可以当做凳子使用,脱换鞋都可以坐在此处进行,也更加方便




客厅

图片
图片

中性色调的搭配,让装修更加显出设计的和生活的质感与精致,简约轻奢的氛围让生活更加富有情调


电视柜的设计让空间更加有丰盈感,同时也可以增加储物空间,许多物品有地方可以存放




餐厅

图片
图片
图片

餐厅的色调和客厅整体的色调保持一致,让利用餐椅的橙色进行一个色彩的反差,使整体多了许多活泼的感觉,感觉更加的欢快




卫生间

图片
图片
图片
图片

卫生间隐形门的设计让空间看起来更加清爽利落,不注意看墙面也无法看出来墙后竟然有另外的一个空间


洗手池的悬空设计让底部更加容易打扫,两面大镜子后部的亮灯让照镜子的时候更加清晰



图片


厨房

图片
图片

厨房的设计让空间的利用率更高,不浪费一点空间,同时可以放进一个烤箱,各种用品齐全,可以大展身手


冰箱选择放在了厨房的外面,并且划分了属于冰箱自己的一个小区域,也不显得突兀




主卧

图片
图片
图片
图片

绿色的背景墙让人觉得放松,眼睛也没有那么疲劳了,背景墙的吊灯增加了卧室的氛围感


内部也专门设计了一个化妆台,也设计了柜子增加了储物空间,更加具有利用率



图片


儿童房

图片
图片

没有哪一个女孩子可以抵得住粉色的美丽吧,儿童房的设计就使用了粉色作为主要色彩,并且做了许多的柜子,可以存放孩子自己的物品,还有一个小书桌可以用来写作业



图片


如果还有什么其他装修方面的问题

可以在评论区留言,或者私信小编哦~

【正大光明   聚贤天下】

正聚装饰

Add/虹口店:虹口区花园路128号运动loft五街区A座2楼

Tel/电话:400-816-2909

Add/普陀店:怒江北路598号B座20楼(红星世贸大厦)

Tel/电话:400-900-6705

Add/南通店:南通市崇川区五洲国际C座创意港10楼

Tel/电话:400-017-0910

关注我~了解更多装修咨询 预约免费量房!



分享到:
ZhengJu Decoration
上海市虹口店:虹口区花园路128号运动loft五街区A座2楼
电话:400-816-2909
上海市普陀店:怒江北路598号B座20楼(红星世贸大厦)
电话:400-900-6705
南通市崇川店:南通市崇川区中新二路8号得利产业园2幢
电话:400-017-0910