正聚实景 | 简约原木感受阳光的气息

发表时间:2022-08-19 14:14
图片

简约原木的风格仿佛置身在美好的大自然之中,木质的设计让人感觉就像是被松软的阳光晒过,把美好的光线放进家里,每一处都是放松的气息,就像是躺在了棉花糖上,辛苦了一天的心也跟着慢慢的放松下来


今天小聚带来了简约原木的风格,一起来感受美好吧



图片


图片
图片

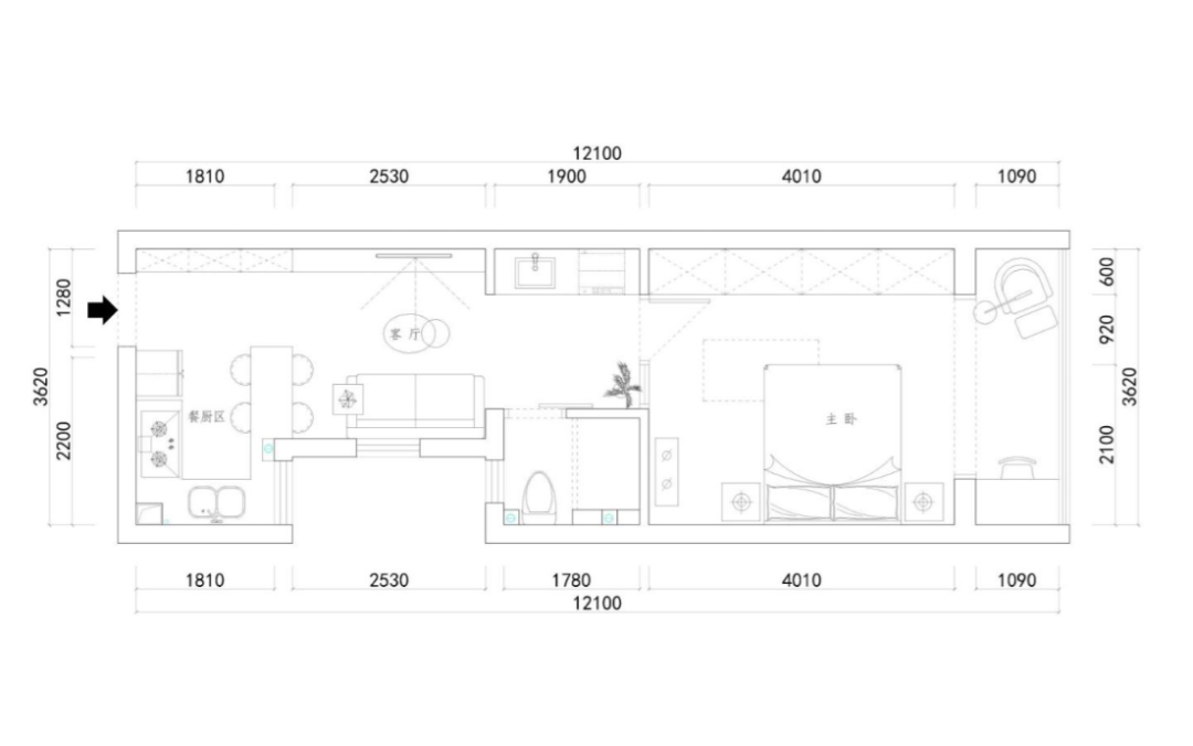
原始户型图

图片

平面布置图



设计公司 | Design Company:正聚装饰

设计主创 | Design   Director:徐炼华

项目地址 | Project   Address :北海新苑




玄关

图片
图片
图片

入门处的玄关做了小小设计,做了一个平台可以坐着脱换鞋子,或者也可以将空间作为存储的空间,也是一个空间多种的使用,都是按照自己的生活习惯进行安排使用


做了一整排的柜子增加了业主的储物空间,同时也不会显得很拥挤,合理的利用了空间,增加空间的立体感也和屋内的颜色相呼应




图片


客厅

图片
图片

木质风的设计,沙发色彩的搭配融合的恰到好处,经典的大白墙也不显得突兀,反而融合的很好,给空间了一个质感,也不再是光秃秃的色彩,和木质的颜色相互呼应着



图片


厨房

图片
图片
图片

开放式的厨房节省了不少的空间,和餐桌合并在一起,家人在一起欢声笑语,当有朋友来家里做客的时候餐桌还可以变成一个吧台



图片


卫生间

图片
图片
图片
图片

卫生间的设计考虑到面积的大小,将洗手柜设计在了外面,同时也可以方便使用不再担心洗手的时候需要在门口等着


室内的卫生间采用了干湿分离的设计,不再担心洗澡的时候水会溅的四处都是



图片


卧室

图片
图片
图片

卧室的设计同样采用了原木风格和颜色,但是又在原有的基础上增加了新色彩让房间的氛围显得更加的轻松愉悦,同时利用一个空间隔出了一个梳妆台,不用担心再化妆的时候去卫生间化妆跑来跑去了



图片


如果还有什么其他装修方面的问题

可以在评论区留言,或者私信小编哦~

【正大光明   聚贤天下】

正聚装饰

Add/虹口店:虹口区花园路128号运动loft五街区A座2楼

Tel/电话:400-816-2909

Add/普陀店:怒江北路598号B座20楼(红星世贸大厦)

Tel/电话:400-900-6705

Add/南通店:南通市崇川区五洲国际C座创意港10楼

Tel/电话:400-017-0910

关注我~了解更多装修咨询 预约免费量房!


分享到:
ZhengJu Decoration
上海市虹口店:虹口区花园路128号运动loft五街区A座2楼
电话:400-816-2909
上海市普陀店:怒江北路598号B座20楼(红星世贸大厦)
电话:400-900-6705
南通市崇川店:南通市崇川区中新二路8号得利产业园2幢
电话:400-017-0910