正聚实景 | 家中每一处都是风景

发表时间:2022-08-09 10:53
图片

现代轻奢已经是大家潮流的指引,一个漂亮而独特的家是经过每一次的深思熟虑以及对未来美好的构想的


设计是给生活锦上添花的,是每一次疲惫的时候到家的放松,最符合自己审美的设计最符合自己房屋的设计,到家之后每一处都是一个风景



图片



图片


图片

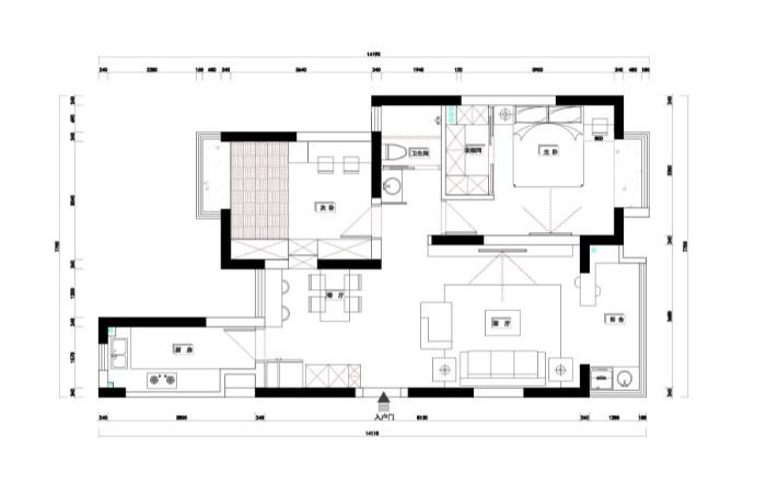
原始户型图

图片

平面布置图

设计公司 | Design Company:正聚装饰

设计主创 | Design   Director:叶文梦

项目地址 | Project   Address :大华水岸蓝桥

项目面积 | Project   Area :90㎡



图片


玄关

图片
图片

玄关的设计部分让空间更加的立体,橱柜的使用更加的巧妙,连接着餐厅的橱柜使用,在侧面挖空出一个凹槽方便放置物品,更易收纳


侧面预留了鞋子放置的空间,上面的柜子也可以放置东西,底部的掏空也更加便携了使用,在下班回来之后可以直接换上拖鞋



图片


客厅

图片
图片

复古轻奢的配色让整个空间更有质感,显得更加高级有品质,皮质沙发的放置更添加了几分色彩,旁边的两个色彩不一的椅子和窗帘的颜色相呼应,不显得突兀,反而覆盖了一层色彩的点缀



图片


餐厅

图片
图片

餐厅中嵌入式的冰箱让空间显得更加的宽敞,橱柜的包围也增加了许多的储物空间让房屋更加的井井有条



图片


厨房

图片

小面积的厨房使用了更加巧妙的设计,让空间不那么拥挤,就算在小小的厨房之中烤箱和微波炉还是一应俱全,在其中也承载了一家之中幸福的来源,幸福的制作就是在这“加工厂”中慢慢显现出来



图片


卫生间

图片
图片
图片

分开使用的洗手池让使用更加方便也不会出现需要使用的时候要一直等待,卫生间内的干湿分离也更加方便使用,灰色的大理石瓷砖的纹路显得高级而不繁琐



图片


儿童房

图片
图片

小公主的房间难道不是粉粉吗,粉色可是公主的颜色,靠墙做了不留空隙的柜子不仅防止灰尘的堆积更加排除了孩子的一些安全隐患


类似贝壳形状的床更加营造了小公主的氛围



图片


卧室

图片
图片
图片

主卧的配置同样使用了到顶的柜子,但是配色更为简约,休息的时候觉得更加的放松



图片


图片
图片

如果还有什么其他装修方面的问题

可以在评论区留言,或者私信小编哦~

【正大光明   聚贤天下】

正聚装饰

Add/虹口店:虹口区花园路128号运动loft五街区A座2楼

Tel/电话:400-816-2909

Add/普陀店:怒江北路598号B座20楼(红星世贸大厦)

Tel/电话:400-900-6705

Add/南通店:南通市崇川区五洲国际C座创意港10楼

Tel/电话:400-017-0910

关注我~了解更多装修咨询 预约免费量房!


分享到:
ZhengJu Decoration
上海市虹口店:虹口区花园路128号运动loft五街区A座2楼
电话:400-816-2909
上海市普陀店:怒江北路598号B座20楼(红星世贸大厦)
电话:400-900-6705
南通市崇川店:南通市崇川区中新二路8号得利产业园2幢
电话:400-017-0910