正聚实景 | 158平后现代风格大平层,开放式空间设计

发表时间:2022-06-30 17:07

喜欢现代轻奢风是因为它带着几分简约的潇洒还有几分轻奢的格调;喜欢大理石和木饰面的组合是因为石材的冷硬与木质的温润搭配到一起总是能打造出一个小资情调的氛围。



基础信息


业主:吴先生   常住人:三口人

户型:三室两厅     建筑面积:158㎡

小区:海安·东湖华庭


图片

项目面积158平,造价30万(不含家电),空间常住在2-3人,屋主独立有想法崇尚简约生活,极简调性是屋主对空间的审美见解与期待。



图片

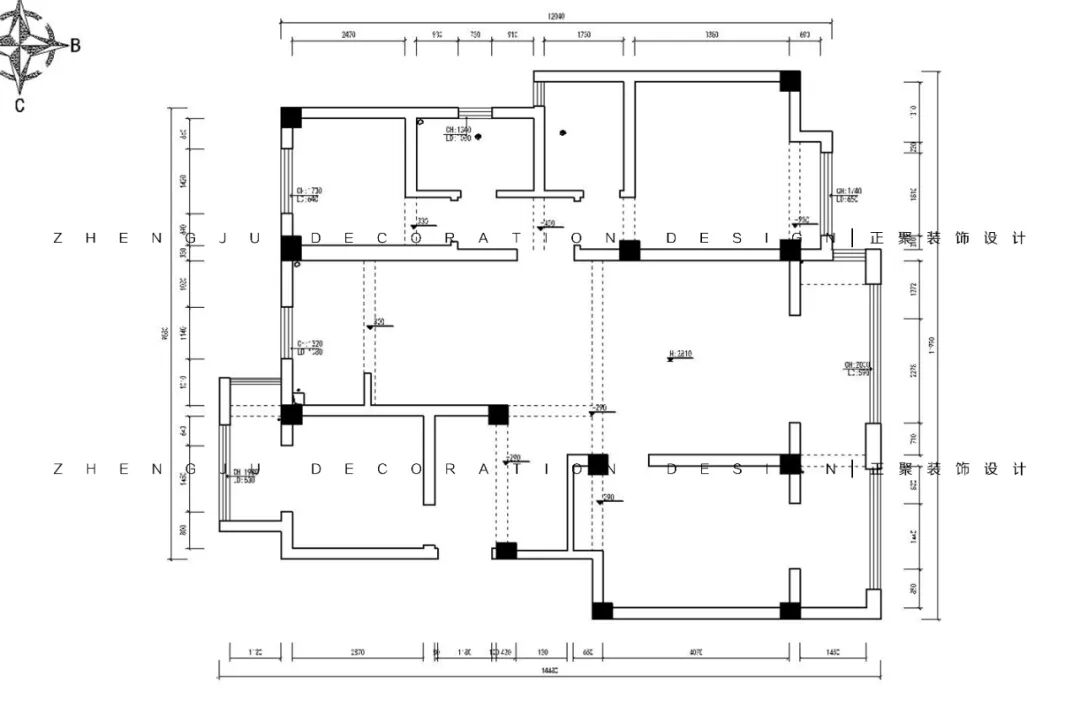
▲原始结构图


图片

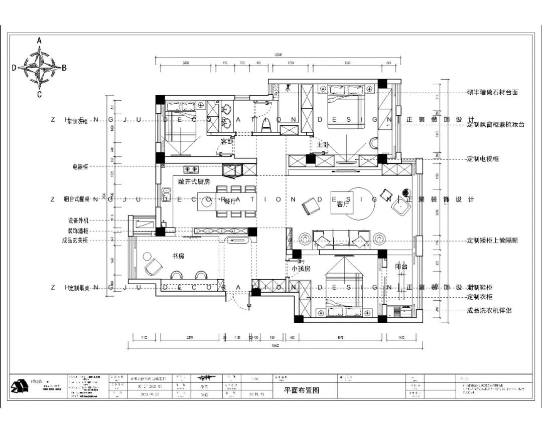
▲平面布置图


图片

入户左手边就是书房,在书房与厨房以及过道装玻璃门来让空间更加开敞通透,模糊掉空间边界,增加互动性。


图片

厨房与书房之间的玻璃门


图片

开放式厨房颜值高,没有空间的阻隔,做饭时能与朋友一起聊天,让烹饪生活更加有趣。


图片


图片

想赋予厨房空间多一层社交的属性,餐桌除了满足家里的就餐的需求,还能应付一大波亲朋好友的拜访,整个空间得到了有效的利用。


图片

从开放式的厨房望向书房


图片


图片

客厅和阳台打通后,让整个室内采光更足,客厅的活动范围也更广了,从视觉上看起来更加宽敞,居住体验相对好一些。

图片

▲置物架装备了感应灯,人到则亮灯,人离则灯熄。非常便捷,而且安全又节能,家居品味提升了档次。


图片

电视背景墙选用了大理石,电视石材背景墙在家装和工程设计中,已经成为了“焦点”,也是大户型居室的重点之一。不但吸引了人们的眼球,更是体现了屋主的品味与个性化的特殊空间。


图片

主次卧都是比较简约的设计,没有太多华而不实的点缀品,生活嘛,就是要简简单单。

上海正聚装饰
,赞37

图片

图 / 设计师和业主合影

图片


如果还有什么其他装修方面的问题

可以在评论区留言,或者私信小编哦~

【正大光明   聚贤天下】

正聚装饰

Add/虹口店:虹口区花园路128号运动loft五街区A座2楼

Tel/电话:400-816-2909

Add/普陀店:怒江北路598号B座20楼(红星世贸大厦)

Tel/电话:400-900-6705

Add/南通店:南通市崇川区五洲国际C座创意港10楼

Tel/电话:400-017-0910


                       图片关注我~了解更多装修咨询 预约免费量房!


分享到:
ZhengJu Decoration
上海市虹口店:虹口区花园路128号运动loft五街区A座2楼
电话:400-816-2909
上海市普陀店:怒江北路598号B座20楼(红星世贸大厦)
电话:400-900-6705
南通市崇川店:南通市崇川区中新二路8号得利产业园2幢
电话:400-017-0910